Skip to content
Menu
Home
About UKL
Terry Seirlis
Project Portfolio
Kangaroo Point
Bowen Hills
Aleva Estate
Past Residential
Dornoch Terrace
Lambert St, Kangaroo Point.
Bassili Dr, Collingwood Pk.
74 and 76 Crosby Rd, Albion
Uni Resort
La Corniche Yeronga
Monterea Rd, Ripley
Mt Gravatt
Moorooka
Highgate Hill
Holland Park
Yeronga
Past Planning/DA
Cumner Rd, Ripley
Loganlea Rd, Meadowbrook
115 Government Rd, Richlands
675 Sandgate Rd, Clayfield
464 Kingsford Smith Dr, Hamilton
Crust Pizza
296 Montague Rd, West End
Mullins St, Redbank Plains
Stratford Rise Estate, Cairns.
Cnr. Queen St & Waterloo St, Cleveland
Past Commercial
40 Elizabeth St, Brisbane
Nexus-East
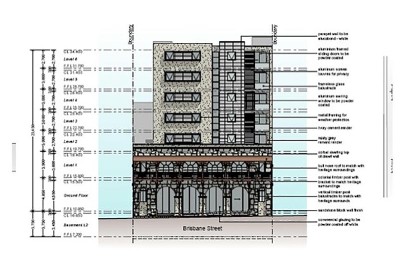
Brisbane Street, corner Limestone Street Ipswich
Contact Us
0409 998 899
Brisbane Street, corner Limestone Street Ipswich
Year: 2010
Mixed use development, with commercial tenancies and 40 units.